产品简介:
XL-21型低压动力配电箱适用于发电厂及工矿企业中,在交流电压500V及以下的三相五线系统作动力配电之用。TXL-21型低压动力配电箱系户内装置靠墙安装,屛前检修。外壳用钢板弯制而成,刀开关操作手柄箱前右柱上部,可以作为切换电源之用。可根据用户需要,选用不同型号,不同电流等级的断路器,满足不同用户的需要。
产品型号及含义:

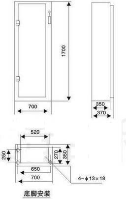
外形及安装尺寸:
结构特征
1.刀熔化组合开关
2.空气断路器
3.电流互感器
4.熔断器
5.交流接触器
6.仪表
1.海拔高度不超过2000;
2.周围空气温度不高于+40℃,并且24h内平均温度不高于+35℃,周围空气温度不低于-5℃;
3.大气条件:空气清洁,相对湿度在温度为+40℃时不超过50%,在温度 较低时允许有较高的相对湿度;
4.没有火灾、爆炸危险、严重污秽、化学腐蚀及剧烈震动的场所;
5.安装时,与垂直面倾斜度不超过5°;
6。本产品适合以下温度运输、储存:-25℃--+55℃。在短时间内(不超过24h)不超过+65℃;

